-
Windows
Windows
-
French Doors
French Doors
-
Patio Doors
Patio Doors
-
Front Doors
Front Doors
-
Roller Shutters
Roller Shutters
-
Window Sills
Window Sills
Sign in
Contact us

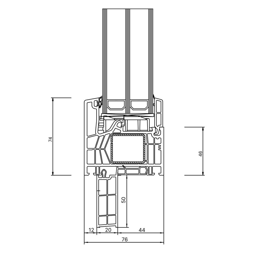
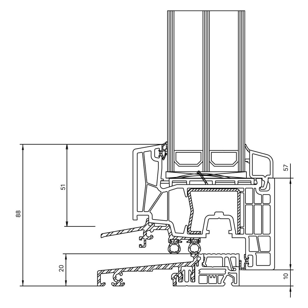
Below is a collection of technical drawings for our uPVC window and French door profiles, including accurate profile cross sections and CAD plans. These drawings allow every dimension and detail of our products to be seen which helps during both the initial product configuration and the final installation. When installing windows and French doors, we also recommend using RAL colour guidelines, specific to the chosen product type.
With the above profile cross sections and CAD (computer-aided design) plans, precise and reliable measurements and details are provided to assist you with accurately configuring and installing your new product. Just click below to order today and add personal design options, or get in touch with our expert team with any further questions.